建売物件
松山市 山越4丁目 新築一戸建て4LDK
太陽光発電設備標準装備・オール電化・耐震等級3相当・ZEH仕様・断熱性能5等級以上・一次エネルギー消費量6等級以上 長期住宅保証・長期白蟻保証・アフターメンテナンス・シックハウス対策
学校/姫山 小学校・勝山 中学校
3,098万万円
40年 頭金0円 ボーナス0円
月々79,807円
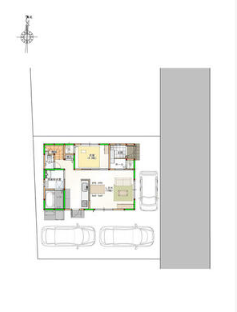
4LDK / 駐車場 3台可
敷地面積 126.81m2 / 建物面積 95.90m2
- 太陽光発電システム6.60㎾搭載
- 駐車場3台分以上、バス1坪以上、24時間換気システム
- ZEH仕様・断熱性能5等級以上・一次エネルギー消費量6等級以上
- オール電化 耐震等級3相当
間取りFloor plan

借入金額 3098万円 ●金利1.1%変動金利 ●返済年数40年で計算しています。
※ろうきん10年固定のキャップローンでシュミレーション
※別途諸費用必要 ※建築確認番号:第2026建確-0123号
●所在地/松山市山越4丁目62-6 ●交通/伊予鉄道環状線 / 本町六丁目駅 徒歩15分 ●用途地域 第一種中高層住居地域 市街化区域 ●販売戸数/2戸 ●地目/宅地 ●建蔽率/60% ●容積率200% ●建築工法/木造 ●設備/上水道・浄化槽 ●学区/姫山 小・勝山 中 ●取引形態/仲介
周辺環境Location

姫山 小学校
750m/徒歩9分
勝山 中学校
1700m/徒歩21分
ハトマート山越店
450m/徒歩6分
こだわりの内観・設備Interior / Equipment
浴室暖房、浴室乾燥機、シャワー付洗面化粧台、温水洗浄便座、トイレ2ヶ所 カウンターキッチン、システムキッチン、食器洗浄乾燥機、浄水器、IHクッキングヒーター、2口コンロ、グリル 全居室収納、太陽光発電システム、EV車充電設備、クローゼット、床下収納、モニター付インターホン、カードキー、ディンプルキー、ダブルロックドア、浄化槽、全居室フローリング、クッションフロア、上水道、人感センサー付照明、ダウンライト、火災警報器(報知機)、複層ガラス、Low-E ガラス
この物件を問い合わせる
建売物件に関するお問い合わせは下記フォームよりお願い致します。





















