E-HOUSE

愛媛で笑顔の家づくり

instagram
LINE
facebook

建売物件

松山市 生石町 ②新築一戸建て4LDK

市街地 生活便利! 角地にて開放的。 エネルギー消費性能★★★★★★(削減率50%達成)オール電化 太陽光システム搭載!断熱性能 5段階/7段階中




学校/たちばな小学校・雄新中学校

3,298万万円

40年 頭金0円 ボーナス0円

月々84,960

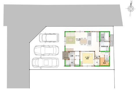
4LDK / 駐車場 3台可

敷地面積 119.08m2 / 建物面積 103.02m2

  • 太陽光発電システム搭載
  • 駐車場3台分以上、バス1坪以上、24時間換気システム
  • 市街地 コンビニ スーパー近く生活便利!
  • ZEH仕様・断熱性能5等級以上・一次エネルギー消費量6等級以上

間取りFloor plan

借入金額 3298万円 ●金利1.1%変動金利 ●返済期間40年で計算しています。
※ろうきん10年固定のキャップローンでシュミレーション
※別途諸費用必要 ※建築確認番号:第2025建確-2052号
●所在地/松山市生石町125-2 ●交通/ 伊予鉄道郡中線 / 土居田駅 徒歩12分 ●用途地域 準工業地域 市街化区域 ●販売戸数/2戸 ●地目/宅地 ●建蔽率/60% ●容積率200%  ●建築工法/木造 ●設備/上水道・下水道 ●学区/たちばな小・雄新 中 ●取引形態/仲介 

周辺環境Location

たちばな 小学校

1600m/徒歩20分

雄新 中学校

1400m/徒歩18分

こだわりの内観・設備Interior / Equipment

浴室暖房、浴室乾燥機、シャワー付洗面化粧台、温水洗浄便座、トイレ2ヶ所 カウンターキッチン、システムキッチン、食器洗浄乾燥機、浄水器、IHクッキングヒーター、2口コンロ、グリル 全居室収納、ウォークインクローゼット、太陽光発電システム、EV車充電設備、シューズインクローゼット、クローゼット、床下収納、モニター付インターホン、ディンプルキー、ダブルロックドア、全居室フローリング、クッションフロア、上水道、下水道、人感センサー付照明、ダウンライト、火災警報器(報知機)、複層ガラス、Low-E ガラス

一覧に戻る

この物件を問い合わせる

建売物件に関するお問い合わせは下記フォームよりお願い致します。

      物件名

      お名前必須

      電話番号必須

      E-mail必須

      お問い合せ内容必須