E-HOUSE

愛媛で笑顔の家づくり

instagram
LINE
facebook

建売物件

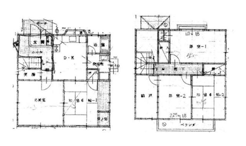
松山市東長戸2丁目 中古一戸建て5SDK

閑静な住宅街 家庭菜園もできる庭付き一戸建て、駐車場縦列2台可能 検査済証あり 






学校/久枝 小学校・鴨川 中学校

1,770万万円

40年 頭金0円 ボーナス0円

月々45,597

5SDK / 駐車場 2台可

敷地面積 178.45m2 / 建物面積 110.34m2

  • 家庭菜園もできる庭付き一戸建て、駐車場縦列2台可能
  • 閑静な住宅地 生活便利!
  • 久枝小学校 鴨川中学校 校区
  • 検査済証 有り

間取りFloor plan

借入金額 1,770万円 ●金利1.10%変動金利 ●返済期間40年で計算しています。
※ろうきん10年固定のキャップローンでシュミレーション
※別途諸費用必要 ※建築年数 1987年3月(築39年2ヶ月)
●所在地/松山市東長戸2丁目344-10 ●交通/伊予鉄バス / 西長戸南口 停歩9分  ●用途地域 第一種低層住居専用地域 市街化区域 ●販売戸数/1戸 ●地目/宅地 ●建蔽率/50% ●容積率80%  ●建築工法/木造 ●設備/上水道・下水道 ●学区/久枝 小・鴨川 中 ●取引形態/仲介  

周辺環境Location

●●m/徒歩●分

●●m/徒歩●分

●●m/徒歩●分

こだわりの内観・設備Interior / Equipment

一覧に戻る

この物件を問い合わせる

建売物件に関するお問い合わせは下記フォームよりお願い致します。

      物件名

      お名前必須

      電話番号必須

      E-mail必須

      お問い合せ内容必須