建売物件
松山市 保免西1丁目中古戸建て4DK
南向き、瑕疵保険検査基準に適合 現在居住中 内覧要予約必要! 瑕疵保険検査基準に適合.
学校/余戸 小学校・余戸 中学校
1,230万万円
35年 頭金0円 ボーナス0円
月々34,037円
DK / 駐車場 1台可
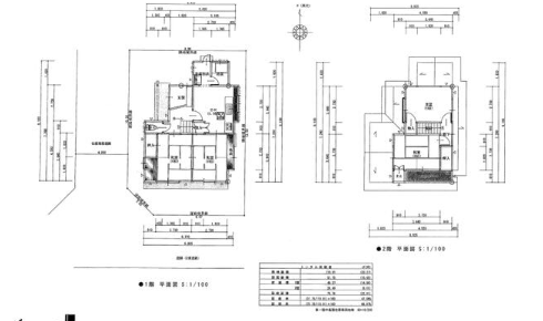
敷地面積 110.01m2 / 建物面積 75.76m2
- 市街地 生活便利!
- スーパー コンビニ近く
- 余戸小学校まで約863m
間取りFloor plan

借入金額 1,230万円 ●金利0.88%変動金利 ●返済期間35年で計算しています。
※ろうきん10年固定のキャップローンでシュミレーション
※別途諸費用必要 ※1981年11月(築44年5か月)
●所在地/松山市保免西1丁目513-11 ●交通/伊予鉄道郡中線 / 余戸駅 徒歩12分 ●用途地域 第一種中高層住居 市街化区域 ●販売戸数/1戸 ●地目/宅地 ●建蔽率/60% ●容積率200% ●建築工法/木造 ●設備/上水道・下水道 ●学区/余戸 小・余戸 中 ●取引形態/仲介
周辺環境Location
余戸 小学校
863m/徒歩11分
余戸 中学校
557m/徒歩7分
こだわりの内観・設備Interior / Equipment
この物件を問い合わせる
建売物件に関するお問い合わせは下記フォームよりお願い致します。



















