建売物件
松山市余戸中3丁目 新築一戸建て4LDK
人気の余戸エリア オール電化・耐震等級3相当・ZEH仕様・断熱性能5等級以上・一次エネルギー消費量6等級以上
〈保証制度〉
長期住宅保証・長期白蟻保証・アフターメンテナンス・シックハウス対策
学校/さくら小学校・余戸 中学校
3,098万万円
40年 頭金0円 ボーナス0円
月々76,589円
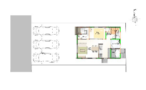
4LDK / 駐車場 3台可
敷地面積 144.73m2 / 建物面積 95.90m2
- 太陽光発電システム6.60㎾搭載
- ZEH仕様・断熱性能5等級以上・一次エネルギー消費量6等級以上
- 駐車場3台分以上、バス1坪以上、24時間換気システム
- 市街地 コンビニ スーパー近く生活便利!
間取りFloor plan

借入金額 3,098万円 ●金利0.88%変動金利 ●返済期間40年で計算しています。
※ろうきん10年固定のキャップローンでシュミレーション
※別途諸費用必要 ※建築確認番号:第2025建確-2000号
●所在地/松山市余戸中3丁目 ●交通/伊予鉄道郡中線 / 鎌田駅 徒歩12分 ●用途地域 第一種住居 市街化区域 ●販売戸数/2戸 ●地目/宅地 ●建蔽率/60% ●容積率160% ●建築工法/木造 ●設備/上水道・下水道 ●学区/さくら小・余戸 中 ●取引形態/仲介
周辺環境Location

余戸 中学校
1500m/徒歩19分

さくら小学校
650m/徒歩8分
こだわりの内観・設備Interior / Equipment
この物件を問い合わせる
建売物件に関するお問い合わせは下記フォームよりお願い致します。






















