建売物件
松山市 来住町 新築一戸建て4SLDK
新規物件【久米小・久米中エリア】学校まで1キロ圏内のお子様の通学にも安心の立地です♪2026年3月完成予定! 駐車場2台分、制震構造、外壁サイディング、バス1坪以上、閑静な住宅街、オール電化
学校/久米 小学校・久米 中学校
3,150万万円
40年 頭金0円 ボーナス0円
月々77,875円
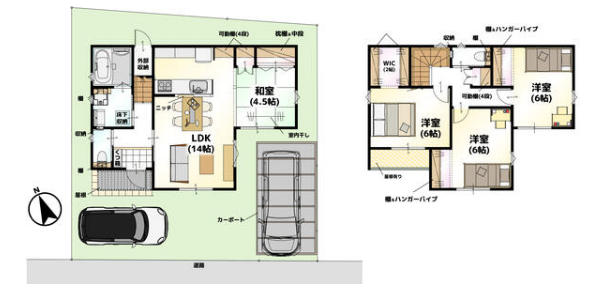
4SLDK / 駐車場 2台可
敷地面積 118.72m2 / 建物面積 93.56m2
- 耐震ダンパー標準装備!
- 駐車場2台分、南向き、バス1坪以上、24時間換気システム
- 市街地 コンビニ スーパー近く生活便利!
- オール電化 耐震等級3相当 フラット35Sに対応
間取りFloor plan

借入金額3,150万円 ●金利0.88%変動金利 ●返済期間40年で計算しています。
※ろうきん10年固定のキャップローンでシュミレーション
※別途諸費用必要 ※建築確認番号:第2025建確-1803号
●所在地/松山市来住町444-19 ●交通/伊予鉄道横河原線 / 久米駅 徒歩15分 ●用途地域 第一種低層住居地域 市街化区域 ●販売戸数/戸 ●地目/宅地 ●建蔽率/50% ●容積率80% ●建築工法/木造 ●設備/上水道・浄化槽 ●学区/久米 小・久米 中 ●取引形態/仲介
周辺環境Location

久米 小学校
700m/徒歩9分

久米 中学校
700m/徒歩9分

コープえひめ久米店
800m/徒歩10分
こだわりの内観・設備Interior / Equipment
浴室暖房、浴室乾燥機、追焚機能、シャワー付洗面化粧台、温水洗浄便座、トイレ2ヶ所、浴室に窓あり システムキッチン、食器洗浄乾燥機、浄水器、IHクッキングヒーター、3口以上コンロ 全居室収納、ウォークインクローゼット、クローゼット、床下収納、モニター付インターホン、浄化槽、省エネ給湯器、室内物干し、上水道、電気、エアコン、ルーフバルコニー、人感センサー付照明、ダウンライト、照明器具、火災警報器(報知機)、複層ガラス
この物件を問い合わせる
建売物件に関するお問い合わせは下記フォームよりお願い致します。

























