建売物件
伊予市 下吾川 新築一戸建て4LDK
駐車場3台分以上、バス1坪以上、オール電化 大型分譲地の一画で、周囲の景観も綺麗な安心の住環境♪ 伊予市下吾川 全27区画
学校/郡中 小学校・港南 中学校
2,790万万円
40年 頭金0円 ボーナス0円
月々68,975円
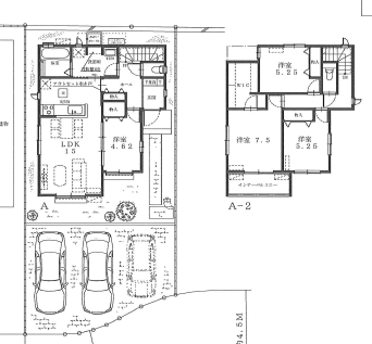
4LDK / 駐車場 3台可
敷地面積 148.92m2 / 建物面積 99.36m2
- 住宅性能評価制度6項目で最高等級取得
- コンビニ スーパー近く生活便利!
- オール電化 耐震等級3相当
- 駐車場3台分以上、南向き、バス1坪以上、24時間換気システム
間取りFloor plan

借入金額2,790万円 ●金利0.88%変動金利 ●返済期間40年で計算しています。
※ろうきん10年固定のキャップローンでシュミレーション
※別途諸費用必要 建築確認:第HPA-25-13132-1号
●所在地/伊予市下吾川1644 ●交通/伊予鉄道郡中線 / 新川駅 徒歩6分 ●用途地域 準工業地域 市街化区域 ●販売戸数/1戸 ●地目/宅地 ●建蔽率/60% ●容積率200% ●建築工法/木造 ●設備/上水道・下水道 ●学区/郡中 小・港南 中 ●取引形態/仲介
周辺環境Location

郡中 小学校
1800m/徒歩23分

港南 中学校
2300m/徒歩29分

ドラッグ コスモス
280m/徒歩4分
こだわりの内観・設備Interior / Equipment
浴室暖房、浴室乾燥機、追焚機能、トイレ2ヶ所、浴室に窓あり カウンターキッチン、オープンキッチン、システムキッチン、浄水器、IHクッキングヒーター、グリル 全居室収納、ウォークインクローゼット、クローゼット、床下収納、モニター付インターホン、全居室フローリング、上水道、下水道、ダウンライト、火災警報器(報知機)、複層ガラス、Low-E ガラス
この物件を問い合わせる
建売物件に関するお問い合わせは下記フォームよりお願い致します。














