売り土地
松山市 天山2丁目
イオンスタイル近く!生活便利。売主にて建物解体、集中プロパンガス撤去、汚水最終枡新設、汚水管接続、北側境界基礎新設、北側コンクリートブロック新設して引渡します。雨水管接続に要する費用は買主負担です。対象地には電線路の設置の為の地役権が設定されています。(中央部分131.70㎡)学校/福音寺小学校・南第二中学校
見所ポイント
建築条件なし
市街地 生活便利!
汚水最終枡新設、汚水管接続、北側境界基礎新設、北側コンクリートブロック新設して引渡します。
上物あり解体更地渡し
| 区画 | 面積 | 価格(税込) | 坪単価(税込) |
|---|---|---|---|
| 1 | 161.48m²(48.84坪) | 1480万円 | 30.3万円 |
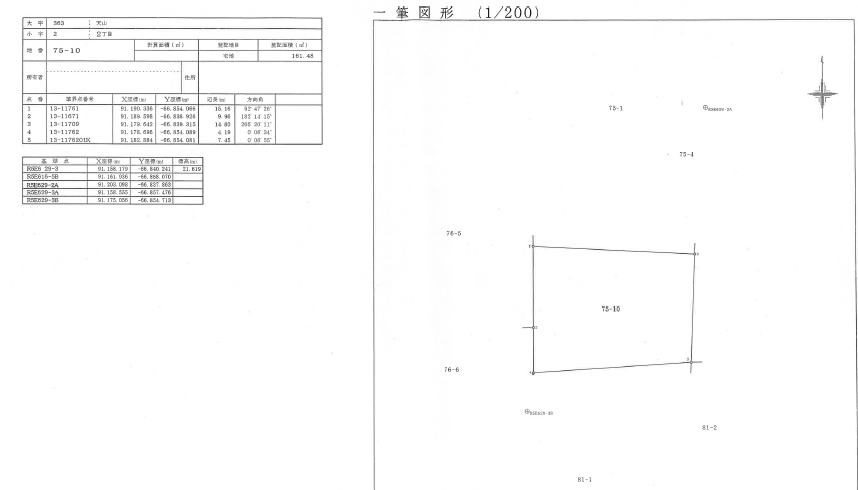
区画図

物件概要
-
所在地
愛媛県松山市天山2丁目75-10
-
学校
福音寺小学校・南第二中学校
-
地目
宅地
-
都市計画
市街化区域
-
用途地域
第一種住居地域
-
建ぺい率
60%
-
容積率
200%
-
交通
伊予鉄道横河原線 / いよ立花駅 徒歩15分 接道 東 4.0m 位置指定有 接面9.9m
-
道路
伊予鉄道横河原線 / いよ立花駅 徒歩15分
接道 東 4.0m 位置指定有 接面9.9m -
引渡
相談/更地渡し
-
取引形態
仲介
この物件を問い合わせる
土地に関するお問い合わせは下記フォームよりお願い致します。













