売り土地
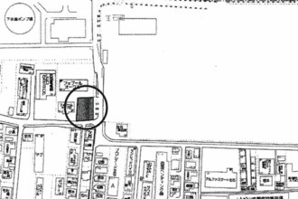
松山市 生石町
新玉小・城西中エリアの土地!建築条件なし! 121坪の広い敷地 南面道路!上下水道引込み必要となります。(要相談)
東側は農道水路あり。
学校/新玉 小学校・城西 中学校
見所ポイント
建築条件なし
市街地 生活便利!
希少エリア 121坪の広い敷地
上下水道引き込み必要
| 区画 | 面積 | 価格(税込) | 坪単価(税込) |
|---|---|---|---|
| 1 | 400.49m²(121.14坪) | 4361.04万円 | 36.0万円 |
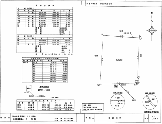
区画図

物件概要
-
所在地
愛媛県松山市生石町450-1・450-7
-
学校
新玉 小学校・城西 中学校
-
地目
宅地
-
都市計画
市街化区域
-
用途地域
準工業
-
建ぺい率
60%
-
容積率
200%
-
交通
伊予鉄バス 生石 バス停 徒歩5分 接道 南 8.0m 公道 接面18.9m
-
道路
伊予鉄バス 生石 バス停 徒歩5分
接道 南 8.0m 公道 接面18.9m -
引渡
相談
-
取引形態
仲介
この物件を問い合わせる
土地に関するお問い合わせは下記フォームよりお願い致します。















